Super sommerlejlighed i hjertet af Svaneke
I nyrenoveret bindingsværkshus fra 1700-tallet udlejes sommerlejlighed med plads til 4 (6) personer (+2 madrasser). Lejligheden, der er på 1ste sal (trappe), er nyindretttet med alle moderne bekvemmeligheder.
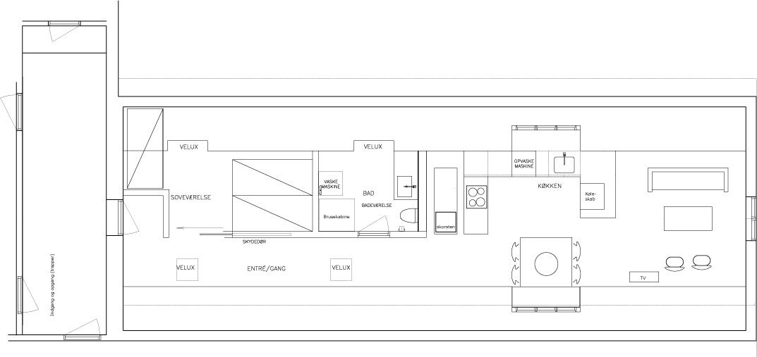
Lejligheden er på 87 m2 og indeholder:
- Entre/gang
- Åbent køkken med kaffemaskine, opvaskemaskine, keramisk komfur, emfang, ovn og mikrobølge-ovn
- Stue med spisebord til 6 personer
- Radio/TV (30 kaneler)
- Sovesofa
- Bad/toilet med bruseniche, vaskemaskine, tørretumbler
Skiftedag
Lejeperioden er fra LØRDAG til LØRDAG
Det betyder at du har råderet over lejligheden LØRDAG fra kl. 14:00.
På afrejsedagen skal lejligheden afleveres senest kl. 10:00.
Husdyr
Det er ikke tilladt at medbringe husdyr.
Rengøring
Der betales obligatorisk rengøringstillæg ved booking af lejligheden. Dog skal lejligheden ved afrejse afleveres rydelig, idet vi i modsat fald forbeholder os ret til at opkræve for oprydning og ekstra rengøring.
Priser
1/1 - 25/6: 2.950,- uge (425,- dag)
25/6 - 20/8: 5.800,- uge
20/8 - 31/12: 2.950,- uge (425,- dag)
Påske- og Efterårsferie: 3.950,- uge
Ovenstående priser er inkl. el og vand, men eksl. obligatorisk rengøringstillæg på kr. 400,-
Betingelser
Depositum på 25% af lejebeløbet indbetales senest 14 dage efter bestilling.Restbeløbet (75%) indbetales senest 4 uger før ankomst. Ved ankomst mindre end 4 uger fra reservationsdato, erlægges restbeløbet sammen med depositum.
Reservation slettes automatisk såfremt ovenstående betingelser ikke overholdes.





